
A-A-55602B
TABLE I. Dimensional requirements - Continued.
Recommended
R
shoulder diameter
Shaft &
housing
B
C
Load rating
fillet radius
Shaft
Housing
Overall
A
Outside
(lbs.)
(mm)
(mm)
(mm)
diameter
width
Interchangeable
Dash
Bore
Max.
Min.
Max.
Dynamic
Static
no.
(mm)
(mm)
(mm)
specification
29
90
160
30
0.080
4.05
5.76
28,000
20,200
MS19074-29
30
90
190
43
0.100
4.25
6.73
46,500
33,300
MS19074-30
31
95
170
32
0.080
4.29
6.12
31,400
22,800
MS19074-31
32
95
200
45
0.100
4.54
7.09
53,200
39,100
MS19074-32
33
100
180
34
0.080
4.55
6.48
34,800
25,500
MS19074-33
34
100
215
47
0.100
4.83
7.62
61,500
45,900
MS19074-34
35
105
190
36
0.080
4.77
6.84
38,000
30,000
MS19074-35
36
105
225
49
0.100
5.05
7.97
69,700
52,400
MS19074-36
37
110
200
38
0.080
5.01
7.20
45,000
34,000
MS19074-37
38
110
240
50
0.100
5.37
8.50
79,100
60,300
MS19074-38
39
120
215
40
0.080
5.47
7.74
49,500
37,500
MS19074-39
48
120
260
55
0.100
5.82
9.21
93,400
71,100
MS19074-40
40
130
280
58
0.120
6.32
9.92
110,000
90,100
MS19074-41
41
150
320
65
0.120
7.11
11.34
133,000
106,000
MS19074-42
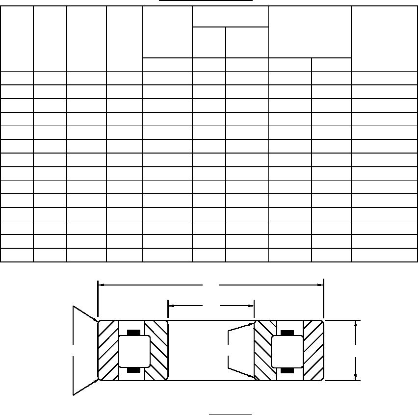
B
A
R
R
C
FIGURE 1. Dimensions.
3
For Parts Inquires submit RFQ to Parts Hangar, Inc.
© Copyright 2015 Integrated Publishing, Inc.
A Service Disabled Veteran Owned Small Business